复制到CAD
【复制到CAD】功能
功能描述
该功能可以将Revit中的图元信息通过导出处理复制到剪贴板,直接粘贴为AutoCAD中的单线图元,无需过多的操作,使AutoCAD与Revit间的数据传递更加快捷便利。
在出图过程中,可利用该功能可直接将Revit中已搭建好的三维模型细节投影为二维视图,直接将所需构件复制到AutoCAD中进行二维节点大样深化。
注意事项
1.在项目文件中,选中二维视图再执行命令;
2.不支持在三维视图、图纸视图及明细表中执行命令;
3.仅支持在平面视图、剖面视图、立面视图、详图视图、面积平面、图例视图中执行命令。
操作步骤
1. 选择需复制的普通视图
选中需要进行复制的普通二维视图的构件图元,不支持在三维视图、图纸视图及明细表中执行该操作。


2. 执行【复制到CAD】命令
在“ReCAD”功能区内,执行“uBIM ReCAD”工具栏中的【复制到CAD】命令,执行后将弹出“选择AutoCAD版本”窗口。



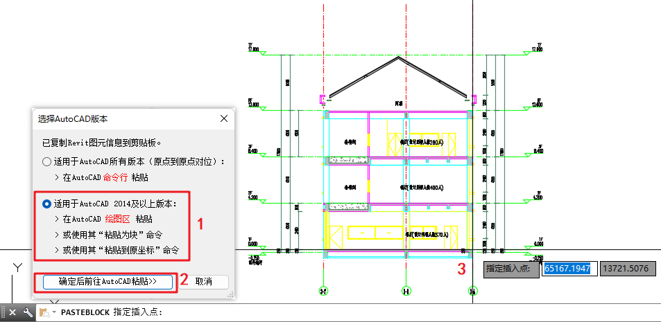
3. AutoCAD版本及粘贴方式设置
在“ReCAD”功能区内,执行“uBIM ReCAD”工具栏中的【复制到CAD】命令,执行后将弹出“选择AutoCAD版本”窗口。
● 方式一:在AutoCAD命令行粘贴。
该方式适用于AutoCAD所有版本,通过原点到原点对位。
在“选择AutoCAD版本”窗口中选中“适用于AutoCAD所有版本”→ 点击“确认后前往AutoCAD粘贴” → 转到AutoCAD在命令行中粘贴命令即可。




● 方式二:在AutoCAD绘图区粘贴
在“选择AutoCAD版本”窗口中选中“适用于AutoCAD2014及以上版本”→ 点击“确认后前往AutoCAD粘贴” → 转到AutoCAD绘图区中通过“粘贴为块Ctrl+Shift+V”命令在指定位置粘贴。
